NA PRODEJ
DRUŽSTEVNÍ BYT
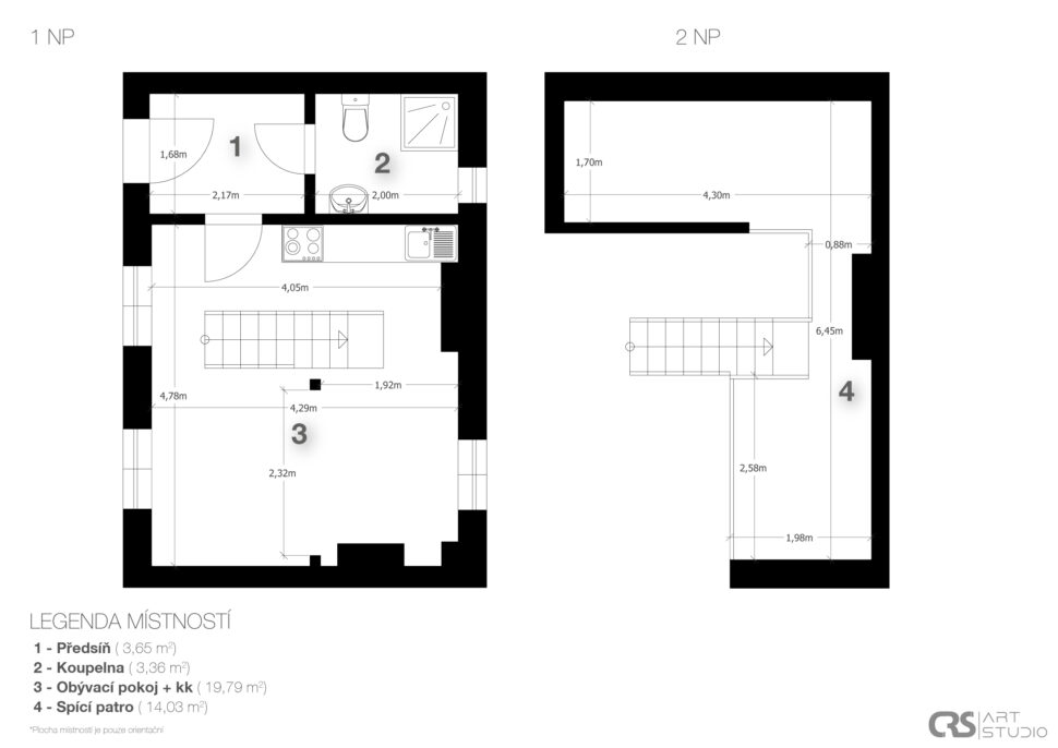
Byt 1+kk / vestavěné patro
Praha 8 - Karlín
Vítkova 236/15
byt 27 m2 + vestavěné patro 14 m2
NA PRODEJ
DRUŽSTEVNÍ BYT
Byt 1+kk s vestavěným patrem
27 m2 + patro 14 m2
Vítkova 236/15, Praha 8 - Karlín
Nabízím vám na prodej družstvení byt (převod členských práv v bytovém družstvu spojené s nájmem bytu) 1+kk s vestavěným patrem na adrese Vítkova 236/15, Praha 8 - Karlín.
Chcete bydlet v útulném bytě v docházkové vzdálenosti centra Prahy v sousedství Karlínského náměstí? V přímém sousedctví je umístěna Karlínská synagoga.
Nebo chcete investovat do bytu vhodného pro dlouhodobý pronájem ve skvělé lokalitě? Máme pro vás jedinečnou nabídku!
Byt má splacenou veškerou anuitu a nic jiného hradit nebudete.
Byt je úplně nový a budete jeho první uživatelé. Jsou zde vysoké stropy, které umožnily výstavbu dřevěného vestavěného patra s výměrou 14 m2 s částí na spaní a částí pro pracovnu s výškou 2 metry. Je zde kuchyň, koupelna a veškeré vybavení. Byt je připravený k nastěhování. Přístupný je z pavlače.
O nemovitosti:
•Adresa: Vítkova 236/15, Praha 8 - Karlín
•Dispozice: 1+kk + vestavené patro na spaní a pracovnu.
•Rozloha: 27 m² + vestavěné patro 14 m².
•Umístění: 3. patro (4. nadzemní podlaží) v cihlovém bytovém domě bez výtahu.
•Vlastnictví: Družstevní (financování hypotékou je možné pouze se zástavou jiné vaší nemovitosti).
•Parkování: před domem na modrých zónách.
Přednosti bytu:
•Prostorný obývací pokoj s kuchyňským koutem. Prostor na spaní a pracovna ve vestavěném patře. Byt je krásně prosvětlený a je v domě, který je kompletně opraven a ve velmi dobrém stavu. Další nespornou výhodou je jeho umístění v centru Karlína v docházkové vzdálenosti do centra Prahy a za rohem od Karlínského náměstí.
Investiční příležitost:
•Vhodné pro vlastní bydlení i jako investice: V této lokalitě je vysoká poptávka po pronájmech
•Atraktivní nájmy: Potenciál pro stabilní a zajímavý příjem z pronájmu
Financování:
•Byt je v družstevním vlastnictví: Financování hypotékou je možné pouze se zástavou jiné vaší nemovitosti. Převod do vlastnictví se neplánuje.
•Bezproblémový převod: Vše připraveno k rychlému a hladkému průběhu převodu družstevních práv a vašemu nastěhování.
Neváhejte a domluvte si prohlídku ještě dnes!
NÁKLADY S PROVOZEM BYTU


CENA
V OKOLÍ
UMÍSTĚNÍ BYTU
Adresa: Vítkova 236/15, Praha 8 - Karlín
SEZNAMTE SE OKOLÍM
ENERGETICKÁ NÁROČNOST

ENERGETICKÁ TŘÍDA - G
PENB zatím nebyl dodán - xx kWh(m2.rok) / xx MWh/rok pro celou budovu
KONTAKTUJTE REALITNÍHO MAKLÉŘE
Jiří Šimon
V případě jakýchkoliv dotazů nebo domluvení osobní prohlídky mě prosím kontaktujte nebo zde zanechte vaše číslo a já vás budu kontaktovat hned, jak to bude možné.




























